S.I. – My Wiring Diagrams

Here’s the manufacturer’s diagram for each of the Pendants to be installed.  I didn’t want to change the Pendants‘ internal wiring – it would make it harder for troubleshooting & repair in the future.  (On top, I wrote which control relays & terminals I would connect each wire to):



Here’s a preliminary diagram, showing how I planned to connect the Pendant and the Radio to new Control Relays:



Here’s the control wiring & inputs for each Trolley / Hoist setup.  On the left side are the “X1” control voltages and control inputs, as connected by the manufacturer to their original Pendant on each Trolley / Hoist combo.  At the Trolley Junction Box, I replaced each Pendant with a Festoon Cable, and simply connected a Festoon conductor to where each original Pendant wire was connected.  (I didn’t want to change the control wiring inside the Trolley Junction Box, to simplify future troubleshooting & repairs):



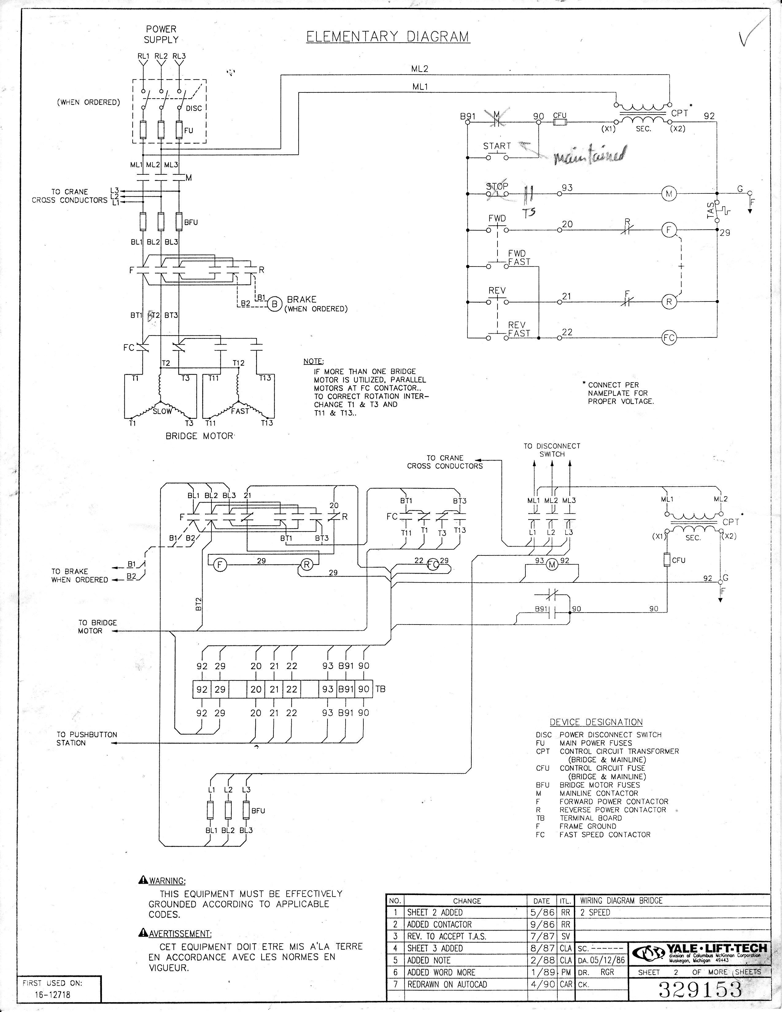
Here’s the manufacturer’s diagram for the Bridge (as modified – both Pendant and Radio had “Maintained” master Start / Stop contacts):



Here’s my diagram for how I connected the Bridge controls, including the “Soft Start”:



Here’s my final diagram for the Control Relays (including the wire labels, and the terminal numbers on the Terminal Blocks inside the Control Box and the Radio Receiver):



Main Index

clients, potential clients, and all others – contact:  philipdybel@hotmail.com

authored:  14 September 2012

last revised:  17 September 2012